Das Projekt »Rechteckschuppen« im historischen Bahnbetriebswerks Hanau – Verfall und Wiederaufbau
Die Anfänge
In den 1990er-Jahren nutzte unser Verein – damals noch unter dem Namen „Dampfbahnfreunde Kahlgrund e. V.“ – zwei Gleise im Lokschuppen Nord des Bahnbetriebswerks Hanau zur Abstellung und Wartung seiner Fahrzeuge. Die Anlagen gehörten zu dieser Zeit noch der Deutschen Bundesbahn. Von Hanau aus organisierte der Verein vor allem seine Fahrten auf der Kahlgrundbahn.
Doch bereits seit den 1990er-Jahren gab es Planungen für eine neue Straßenbrücke, die den Bahnübergang Heideäcker über die Strecke Hanau–Fulda ersetzen sollte. Der Lokschuppen Nord lag im Bereich dieser Planungen – mit der Folge, dass unser Mietvertrag im Jahr 1999 gekündigt wurde.
Mit großem Einsatz gelang es dem Verein noch im selben Jahr, den sogenannten Rechteckschuppen des Bahnbetriebswerks Hanau anzumieten. Das Gebäude bot eigentlich ideale Voraussetzungen: Drei Gleise für Fahrzeuge sowie genügend Platz für Werkstätten und Sozialräume in den Anbauten. Zwar war der bauliche Zustand nicht perfekt – an einigen Stellen tropfte es durch das Dach –, doch insgesamt bot der Schuppen genau die Möglichkeiten, die wir für unsere Vereinsarbeit benötigten.
In den folgenden Jahren entwickelte sich der Lokschuppen zu einem lebendigen Ort. Neben der Arbeit an den Fahrzeugen fanden hier auch Veranstaltungen statt. Besonders in Erinnerung geblieben ist „Jazz im Lokschuppen“: Die Band wurde auf einem Flachwagen von unserer Dampflok 89 906 direkt in den Schuppen gefahren. Auch eine Schnellzuglokomotive der Baureihe S 3/6 war in dieser Zeit zu Gast.

Der Einsturz des Daches
Im Herbst 2001 änderte sich die Situation jedoch schlagartig.
An einem Samstag bemerkten Vereinsmitglieder plötzlich herabfallende Holzteile am ersten Dachbinder. Bei genauerer Untersuchung zeigte sich, dass dieser Binder stark beschädigt war und bereits einen deutlichen Seitenversatz aufwies – ein Zeichen akuter Einsturzgefahr.
Sofort wurden alle Fahrzeuge aus dem Lokschuppen gezogen, darunter auch die zu diesem Zeitpunkt geliehene Dampflok 24 083. Nur wenige Stunden später stürzten die ersten beiden Dachbinder mitsamt der darüberliegenden Lichtkuppel ein.
Ursache war die Konstruktion des Daches: Es bestand aus filigranen Nagelbindern, sogenannten stephanschen Bögen, hier war über die Jahre hinweg an den Anschlüssen der Lichtkuppel Wasser in die Konstruktion eingedrungen. Die hölzernen Binder wurden dadurch zunehmend geschädigt, verloren ihre Tragfähigkeit und brachen schließlich zusammen.
Leider blieb es nicht bei diesem ersten Einsturz. In den Jahren 2006 und 2009 folgten weitere Teile des Daches, so dass schließlich die komplette Dachkonstruktion zerstört war.

Der Weg zum eigenen Bahnbetriebswerk
Nach langen und intensiven Bemühungen gelang es unserem Verein gemeinsam mit der dafür gegründeten Stiftung Bahnbetriebswerk Hanau schließlich, das gesamte Gelände Ende 2010 zu übernehmen. Damit waren wir erstmals nicht mehr nur Mieter, sondern konnten selbst über die Zukunft der historischen Anlagen entscheiden.
In den folgenden Jahren stand zunächst Sicherungsarbeit im Vordergrund. Die eingestürzten Dachreste wurden vollständig zerlegt, sortiert und fachgerecht entsorgt. Holz, Glas, Stahl, Ziegel und Dachpappe mussten voneinander getrennt werden. Gleichzeitig wurden die noch erhaltenen Gebäudeteile so gut wie möglich stabilisiert.
Schritt für Schritt konnten erste Verbesserungen erreicht werden:
2013 erhielt der Anbau über der heutigen Schreinerei ein neues Dach, 2019 die Schmiede, 2021 folgten die übrigen Anbauten dank Förderungen durch den Main-Kinzig-Kreis und das Denkmalamt.
2013 erhielt der Anbau über der heutigen Schreinerei ein neues Dach, 2019 die Schmiede, 2021 folgten die übrigen Anbauten dank Förderungen durch den Main-Kinzig-Kreis und das Denkmalamt.

Der Plan zum Wiederaufbau
Der Wunsch, das Dach des Rechteckschuppens wieder aufzubauen, bestand seit der Übernahme des Geländes. In den folgenden Jahren wurden Vermessungen durchgeführt, Konzepte entwickelt und Kosten ermittelt. Eine wichtige Grundlage bildete eine Studienarbeit aus dem Jahr 2016, in der das Gebäude detailliert aufgenommen und erste Wiederaufbaukonzepte entwickelt wurden.
Nach intensiver Vorbereitung stellten wir schließlich 2020 einen Förderantrag im Denkmalschutz-Sonderprogramm des Bundes. Unterstützt wurde das Projekt zusätzlich durch Fördermittel des Landes Hessen sowie durch die Deutsche Stiftung Denkmalschutz.
Damit konnte ein Gesamtprojekt mit einem Volumen von rund 695.000 Euro auf den Weg gebracht werden.

Drei Bauabschnitte
Der Wiederaufbau des Rechteckschuppens ist in drei Bauabschnitte gegliedert:
1. Bauabschnitt
Restaurierung und statische Sicherung des historischen Mauerwerks
Restaurierung und statische Sicherung des historischen Mauerwerks
2. Bauabschnitt
Wiederaufbau der Dachkonstruktion
Wiederaufbau der Dachkonstruktion
3. Bauabschnitt
Restaurierung von Toren, Türen und Gleisanlagen sowie Innenausbau und technische Ausstattung
Restaurierung von Toren, Türen und Gleisanlagen sowie Innenausbau und technische Ausstattung
Unerwartete Herausforderungen
Der erste Bauabschnitt wurde in den Jahren 2023 und 2024 durch eine Fachfirma ausgeführt. Dabei stellte sich jedoch heraus, dass das historische Mauerwerk stärker geschädigt war als zunächst angenommen. Zusätzlich waren umfangreichere statische Maßnahmen erforderlich.
Mehr Mauerwerk musste abgetragen und deutlich mehr Stahlbeton zur Stabilisierung eingebaut werden. Dadurch entstanden Mehrkosten von über 150.000 Euro. Eine zusätzliche Förderung der Deutschen Stiftung Denkmalschutz in Höhe von 50.000 Euro konnte einen Teil dieser Mehrkosten auffangen.
Aus Kostengründen musste jedoch auf das ursprünglich geplante vollständige Neuverfugen des Mauerwerks vorerst verzichtet werden. Diese Arbeiten wurden im Jahr 2025 größtenteils in Eigenleistung durch Vereinsmitglieder ausgeführt; kleinere Restarbeiten stehen noch an.

Der Wiederaufbau des Daches
Anfang 2026 begann schließlich der zweite Bauabschnitt: der Wiederaufbau des Daches. Die Arbeiten sollen im Frühjahr 2026 abgeschlossen werden.
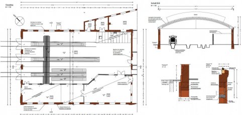
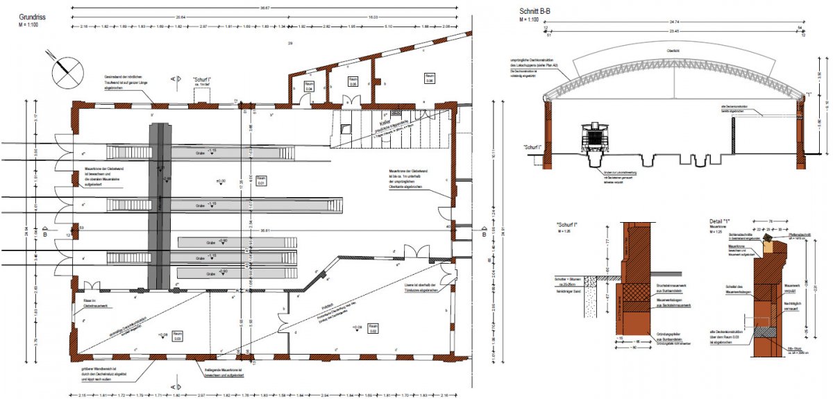
Das Dach entsteht dabei wieder in seiner historischen äußeren Form mit den charakteristischen Lichtbändern. Die ursprünglichen stephanschen Bögen konnten jedoch aus statischen und finanziellen Gründen nicht rekonstruiert werden. Stattdessen kommen moderne Leimholz-Bogenbinder zum Einsatz.
Ein Teil eines originalen Dachbinders bleibt erhalten und wird künftig im Bahnbetriebswerk ausgestellt.
Auch in diesem Bauabschnitt führten Preissteigerungen im Bauwesen zu höheren Kosten als ursprünglich geplant, sodass ein Großteil der verfügbaren Fördermittel bereits nach Abschluss dieses Bauabschnitts aufgebraucht sein wird.

Die letzten Schritte
Mit der Fertigstellung des Daches beginnt der dritte Bauabschnitt. Dieser umfasst alle Arbeiten, die notwendig sind, um das Gebäude wieder vollständig nutzbar zu machen: Restaurierung der Tore, Gleisarbeiten, die Instandsetzung der Achssenke sowie der Ausbau der Werkstätten.
Aufgrund der Kostensteigerungen werden viele dieser Arbeiten nur durch umfangreiche Eigenleistungen der Vereinsmitglieder möglich sein. Dennoch entstehen weiterhin erhebliche Materialkosten, für die wir derzeit zusätzliche Fördermittel und Spenden einwerben.
Die zukünftige Nutzung
Der Rechteckschuppen wird künftig die zentrale Werkstatt unseres Museums sein. Hier sollen historische Fahrzeuge während Wartung und Instandsetzung untergestellt werden.
In den Anbauten entstehen die Werkstätten mit den notwendigen Maschinen und Arbeitsplätzen für die Restaurierung und Pflege der Fahrzeuge.
Langfristig wird damit eine klare Aufgabenteilung im Bahnbetriebswerk Hanau entstehen:
Der nördliche Lokschuppen dient überwiegend der betrieblichen Fahrzeugabstellung und kleineren Instandhaltungsarbeiten, während der südliche Lokschuppen für Veranstaltungen und die museale Präsentation von Fahrzeugen genutzt wird.
Der nördliche Lokschuppen dient überwiegend der betrieblichen Fahrzeugabstellung und kleineren Instandhaltungsarbeiten, während der südliche Lokschuppen für Veranstaltungen und die museale Präsentation von Fahrzeugen genutzt wird.
Mit dem Wiederaufbau des Rechteckschuppens wird ein wichtiges historisches Gebäude des Bahnbetriebswerks Hanau bewahrt – und gleichzeitig eine zentrale Arbeitsstätte für den Erhalt historischer Eisenbahnfahrzeuge geschaffen.
Weitere Informationen
Eingetragen von Florian Hahn am 13. März 2026 - 16:13